
無垢ヌックの家
#ナラ材 #無垢床 #モリアン #ヌック #シースルー階段 #造作家具工事
#間接照明 #リシェルSI #造作洗面 #塗り壁Design Plan
2区画分譲地の一画に佇む、南向きの敷地。
プライベートな空間を大切にしながら、外の緑をやさしく取り込む設計としました。
オリジナルカラーで吹き付けた、すっきりとしたシンプルな外観。
農園で設計士と実際に見て選んだ植栽は、季節の移ろいを知らせ、住まいに立体感と上質な彩りを添えます。
無垢材を使用した心地よいLDKを住まいの中心に。
自然と人が集まる、居心地のよいリビングが生まれました。
LDKのどこにいても家族の気配が感じられる、安心感のある空間です。
照明計画は「足す」という考え方で。
天井はすっきりと仕上げ、フロアライトやペンダントライトのあたたかな光が、やさしく空間を包み込みます。
段板のみの階段から差し込む光が、時間帯ごとに異なる表情を見せ、日常を楽しませてくれます。
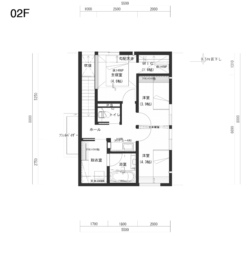
2階には3つの居室を配置。
子供部屋や書斎など、ライフスタイルに合わせた使い方が可能です。
主寝室には階段の吹き抜けに向けたミニヌックを設け、ささやかな遊び心をくすぐります。
コンパクトでありながら、幾度もブラッシュアップを重ねた住まい。
家族の暮らしを、より豊かに育んでいきます。



